Navigation überspringen
  • Projekte
    • Kirchbau
    • Wohnbau
    • Bildungsbau
    • Sanierung und Denkmalpflege
    • Wirtschaftsbau
  • Kompetenz
    • Bauen heute
    • Kirchliche Räume gestalten
    • Energie - Suffizienz - Nachhaltigkeit
    • Immobilien-Beratung
    • Bauschadens-Beratung
    • Sanierung/ Denkmalpflege
    • Projektentwicklung
    • Gemeinschaftlich Bauen
  • Profil
    • Philosophie
    • Personen
    • Fortbildung
Navigation überspringen
  • Instagramm
  • Impressum
  • Kontakt
  • start

2003-03-16 10:22 von reiner

Freie ev. Gemeinde Bonn

2008: 1. Preis Kategorie "Raumakustik" der Rigips Trophy

Weiterlesen … Freie ev. Gemeinde Bonn

Freie ev. Gemeinde Bonn

2003-03-16 10:22 von reiner

Umbau der städtischen Wagenhallen zum Gemeindezentrum

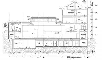
Die Freie evang. Gemeinde Bonn, seit 40 Jahren in der Bonner Altstadt zwischen Beethovenhalle und Rhein beheimatet, konnte im Jahr 2003 nach langjährigem beharrlichen Bemühen zwei städtische Wagenhallen auf der gegenüberliegenden Straßenseite erwerben, um ihr zu eng gewordenes Gemeindezentrum dorthin zu erweitern und zugleich den tradierten innerstädtischen Standort zu erhalten.

Die Hallen wurden teilweise abgetragen, unterkellert und als reine Nutzungsänderung in den alten Außenmaßen wieder hergestellt und neu gefüllt. Entlang der Straße wurde der Blockrand durch eine Aufstockung geschlossen, die durch ihren ansteigenden Bug und eine leichte Verdrehung in das Gemeindezentrum hineinleitet.
Der rationalen Zweckform der alten Industriehallen wird ein kreisrunder Gottesdienstraum für 500 Pers. mit einer elliptischen Laterne als sinnhafte Gestalt für die versammelte Gemeinde einbeschrieben. Die seitlich dazuliegende Stahlbetonhalle nimmt das Foyer mit Cafeteria, Galerie und Nebenräumen auf.

Nach der Einweihung der neuen Räume im Frühjahr 2007 wurde in 2008 das alte Gemeindezentrum auf der gegenüberliegenden Seite für die umfangreiche Kinder- und Jugendarbeit modernisiert. 

Ort und Aufgabe

Die städtebaulich geforderte Aufstockung in der Bauflucht der Hatschiergasse wurde baukörperlich zur Hinführung auf das rückwärtig gelegene Gemeindezentrum genutzt. Über dem Gottesdienstraum mit Empore finden Räume für die Seminar- und Hauskreisarbeit der Gemeinde sowie die Büros der Pastoren ihren Platz.

Als Antwort auf die gewachsenen Ansprüche an Komfort einerseits und als aktiver Beitrag zu Energieeinsparung und Bewahrung der Schöpfung andererseits, wurde eine Wärmepumpenanlage eingebaut, die das nahe Rheinwasser mit seiner relativen Wärme im Winter zum Heizen und im Sommer zum Kühlen nutzt, ohne eine Klimaanlage zu benötigen.

Gottesdienstraum und Verkündigungsbereich

Der Gottesdienstraum erhält durch seine konzentrische Form eine einem Amphitheater ähnliche akustische und optische Raumqualität. Auch die angrenzenden Räume richten sich in Kreisform auf den Verkündigungsbereich hin aus.

Aufgrund der Raumbreite sind beim Einsatz von Medien zwei Projektionsflächen erforderlich. Hierfür entwickelten wir eine Verkündigungsskulptur als ca. 18m langes Projektionssegel in Form eines römischen Kreuzes, das die Lautsprecher verbirgt, den Raum in Schwingung bringt und den Verkündigungsbereich zentriert und gliedert in Musik-, Verkündigungs- und Taufbereich.
Die weitläufig angelegte Empore ist mit ihrem schmalen Deckenrand, dem filigranen Geländer und lichten Deckenöffnungen im rückwärtigen Bereich nicht räumlich abgetrennt, sondern ein großzügiger Teil des Kirchraumes.

Eine elliptische Laterne bildet als Lichtschleuse den vertikalen Gegenpol zu den sonst eher horizontal liegenden schwingenden Raumformen.

Für Kanzel, Tisch und Taufbecken-Abdeckung wurde als besonderes Material ein Edelstahlgewebe gefertigt, das jeweils wie ein festliches Gewand auf eine tragende Unterkonstruktion aufgebracht wird. Je nach Beleuchtung und Blickwinkel ergeben sich Durchblicke, abschließende oder irrisierende Effekte - eine heutige Interpretation des Spiels aus "Verhüllen und Zeigen" aus der Liturgie der alten Kirche.

Foyer und Raum der Stille

Das Foyer erhielt unter dem vorhandenen Dachoberlicht der alten Kranbahn eine großzügige teilweise offene Galerie für Café und Bücherei-Nutzung, sowie im Obergeschoß einen dem Gottesdienstraum mit gegenläufiger Rundung gegenübertretenden "Raum der Stille" (Kapelle).

... so treten sich im Luftraum über der Cafeteria die zwei besonderen Räume der Gottesbegegnung mit rund gemauerten, transluzent schimmernden Wänden gegenüber - gleichsam als Verkörperung der christlichen Spannungspole "Öffnung zur Welt" (Gottesdienstraum) und "Rückzug von der Welt" (Raum der Stille) gegensätzlich und doch zusammengehörig wie "Einatmen und Ausatmen"...

Führung durch das Gemeindehaus

Zum Video bei Youtube (Sie verlassen unsere Webseite)

bibel.tv, Gottes Häuser, 2009

Navigation überspringen
  • Kirchbau
  • Wohnbau
  • Bildungsbau
  • Sanierung und Denkmalpflege
  • Wirtschaftsbau

Kirchbau

2025-12-11 17:52 von Bernhard Michels

Ev. Kirchengemeinde Troisdorf

Sanierung Quartierszentrum der Ev. Kirchengemeinde Troisdorf

Weiterlesen … Ev. Kirchengemeinde Troisdorf

2016-12-15 15:31 von Bernhard Michels

Freie ev. Gemeinde Gummersbach

Neubau und Erweiterung des Gemeindehauses

Weiterlesen … Freie ev. Gemeinde Gummersbach

2008-03-16 11:34 von reiner

Evangelische Freikirchliche Gemeinde Leipzig

Neubau des Gemeindehauses

Weiterlesen … Evangelische Freikirchliche Gemeinde Leipzig

2007-06-10 21:42 von reiner

Freie ev. Gemeinde Langenfeld

Vision und Wirklichkeit

Weiterlesen … Freie ev. Gemeinde Langenfeld

2003-03-16 10:22 von reiner

Freie ev. Gemeinde Bonn

2008: 1. Preis Kategorie "Raumakustik" der Rigips Trophy

Weiterlesen … Freie ev. Gemeinde Bonn

2000-03-10 20:18 von reiner

Freie ev. Gemeinde Wuppertal-Ronsdorf

2003: Anerkennung beim Architekturpreis freikirchliches Bauen

Weiterlesen … Freie ev. Gemeinde Wuppertal-Ronsdorf

1998-07-08 19:21 von reiner

Freie ev. Gemeinde Gudensberg

1998: 1. Preis beim Architekturpreis für freikirchliches Bauen

Weiterlesen … Freie ev. Gemeinde Gudensberg

 
Navigation überspringen
  • Datenschutzerklärung
Diese Webseite verwendet technisch notwendige Cookies, um ordnungsgemäß zu funktionieren. Falls Sie nicht möchten, dass Cookies auf ihrem Rechner gespeichert werden, nutzen Sie bitte die entsprechenden Möglichkeiten in den Einstellungen Ihres Browsers, um Cookies zu deaktivieren. Gespeicherte Cookies können zudem auch noch nachträglich in den Einstellungen des Browsers gelöscht werden. Der Ausschluss von Cookies kann zu Funktionseinschränkungen dieses Onlineangebotes führen. Datenschutz-Informationen