Landeskirchliche Gemeinschaft Langenfeld

Gottesdienstraum in Holzskelettbauweise

Aufgabe des Entwurfes war es, auf dem 2,00m tiefer als die Straße gelegenen Grundstück bei minimalem Budget ein "herausragendes" und würdevolles Gebäude für die kleine christliche Gemeinschaft zu gestalten.

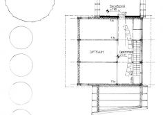
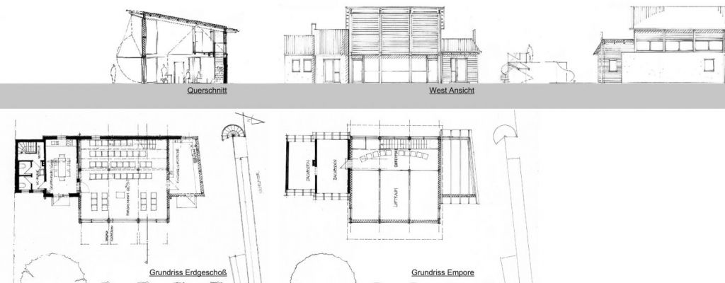
Bestand war ein ca. 80 Jahre altes mehrfach um- u. angebautes Siedlerhäuschen mit kleinteiligem Satteldach. Nebenräume, kleiner Gruppenraum, Bodenplatte und alte Rückwand wurden erhalten, der Kirchraum durch den neuen Holzbau vergrößert und durch einen Eingangsvorbau ergänzt. Der Kirchraum öffnet sich mit geschoßhohen Glasflächen zum Garten. Der kleine Gruppenraum ist durch ein Glasfeld mit dem großen Raum verbunden und kann so während des Gottesdienstes als Eltern-Kind-Raum genutzt werden. Der Vorraum dient zugleich als Empfangsraum, Garderobe und Abstellbereich für die Haustechnik. Der hohe Hauptraum erhielt als Erweiterungsfläche eine kleine Sängerempore. Die ursprünglich geplanten Klappläden zur Verbindung von Innen und Außen, Lichtregulierung und Gestaltung der Bühnenrückwand entfielen aus Kostengründen.

Konzept + Planung

Tragwerk

Der neue Gemeinschaftsraum wurde als Holzskelettkonstruktion errichtet. Die Lasten des um 10º geneigten Pultdaches werden sowohl über die innen und außen sichtbar verbleibenden Stützen der Außenwände als auch die Emporenstützen abgetragen. Die Aussteifung erfolgt über Schalung und Diagonalen in den Wänden.

Modell:

Als Gesprächsgrundlage für die Abstimmung mit den Bauherren und -damen sowie dem Bauaufsichtsamt diente ein Entwurfsmodell im Maßstab 1 : 100

Innenraum

Er sollte zugleich einladend, warm und freundlich, aber auch klar, würdevoll und festlich für die Gestaltung von Gruppenstunden u. Gottesdiensten geeignet sein.
Räumliche Spannung entsteht durch den Wechsel von geschoßhohen Holz- und Glasflächen und durch eine kleine Sängerempore mit einläufiger Treppe an der Rückwand. Der Raum erhält seine Ausrichtung durch den großzügig gerahmten Ausblick in den Garten.

Außenraum

Bereits von weitem ist der hölzerne Neubau als Fremd-Körper sichtbar, der auf seine besondere Nutzung neugierig macht. Das Gebäude lässt durch die hohen schmalen Seitenfenster gewisse atmosphärische Einblicke zu, schützt aber auch seine Nutzer vor zuviel Zudringlichkeit.
Vom Altbau wurden Nebenräume (unterkellert), Bodenplatte und Rückwand erhalten, die jetzt den neuen Holzbau sozusagen "huckepack" nimmt.

...Pläne

Zurück